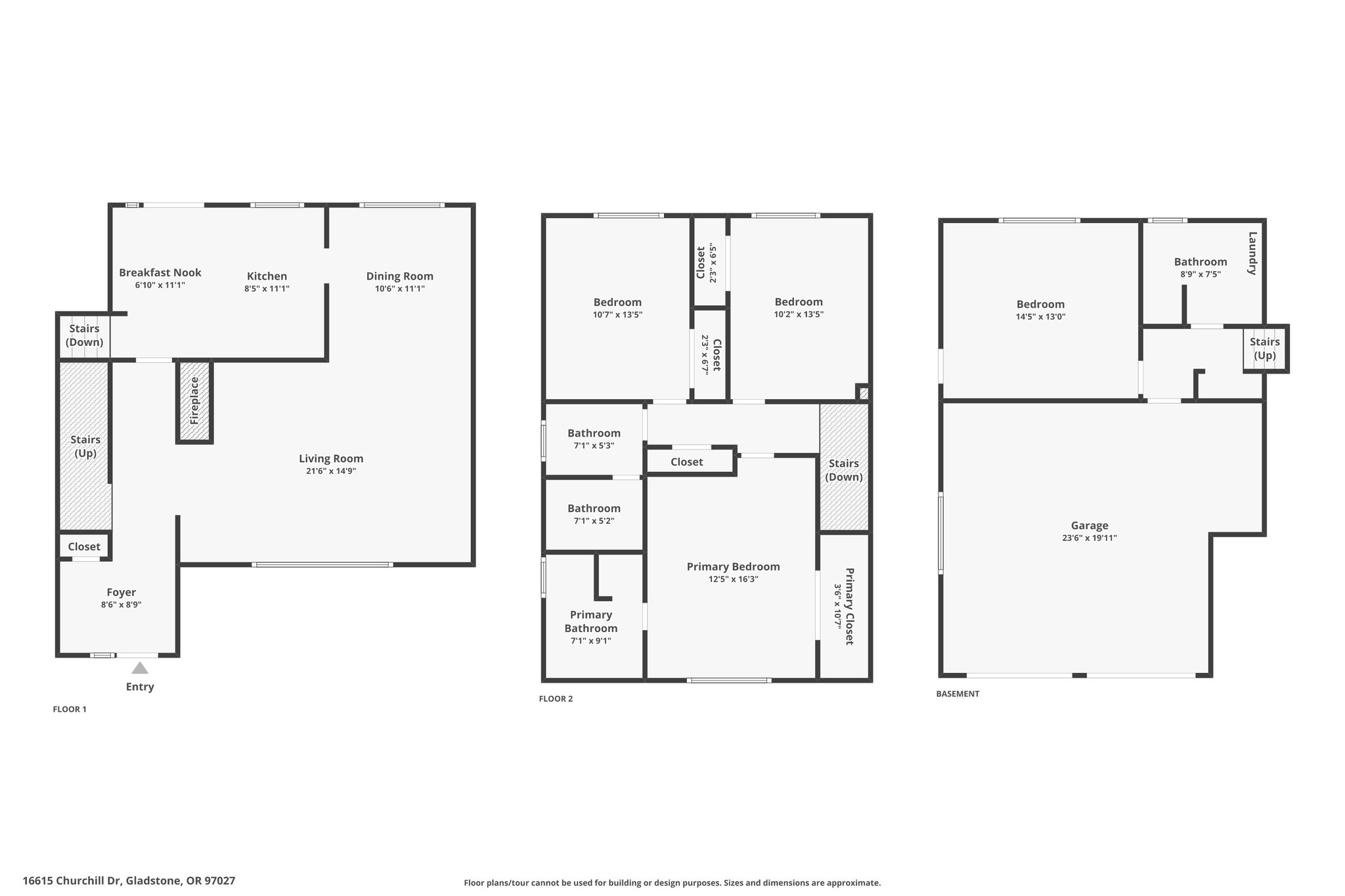
16615 Churchill Dr, Gladstone, OR 97027
Toggle Navigation
Images
Floor Plans
3D Tour
Map
16615 Churchill Dr
Gladstone, OR 97027
Scroll to Content
Images
Slideshow
Photo Grid
Hide
Previous
Next
Show more
Floor Plans
Slideshow
Photo Grid
Hide
Previous
Next
3D Tour